| Estado de Disponibilidad: | |
|---|---|
| Cantidad: | |
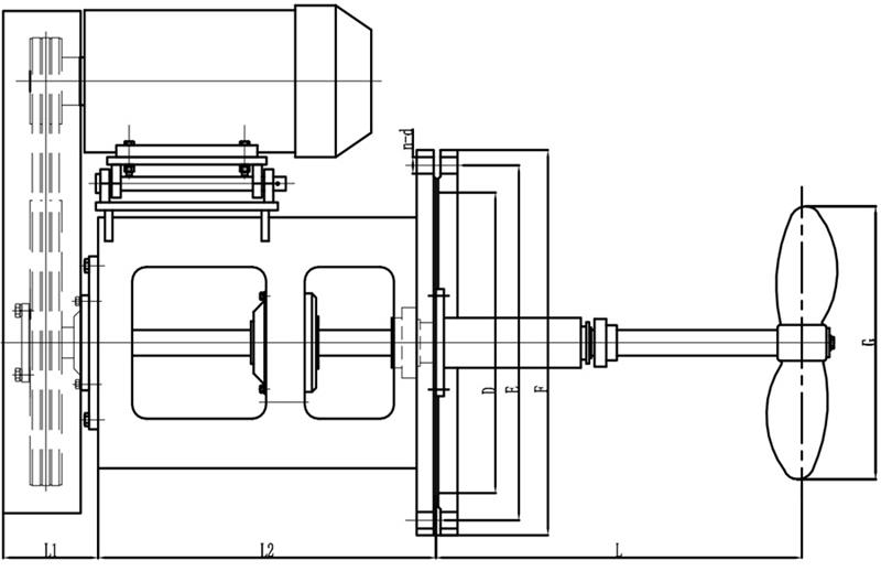
Introducción del agitador de entrada lateral tipo P-Belt:
La instalación de un agitador de entrada lateral en el tanque de aceite se utiliza para mezclar aceites u otros medios y luego alcanzar el propósito de armonización, transferencia de calor, homogeneización y prevención de la acumulación de sedimentos.El uso de este equipo tiene muchas ventajas, como una pequeña inversión, operación conveniente, alta eficiencia, bajo consumo de energía, baja electricidad estática generada en el medio y garantía de calidad del producto.
El mezclador de entrada lateral tipo correa P se puede instalar en tanques de petróleo, tanques de lubricante, tambores de fueloil, tanques de parafina, tanques de asfalto (para asfalto de caucho pesado, betún de petróleo básico, asfalto de grado A) y algunos tanques de almacenamiento para aditivos y otros. medio que necesita ser agitado.
Material del agitador de entrada lateral para tanques de almacenamiento.
¿Cómo elegir el conjunto de sellado del agitador?
Es la clave para evitar fugas de medios tóxicos e inflamables al seleccionar el conjunto de sellado adecuado para que el agitador resuelva el funcionamiento, el funcionamiento, el goteo y las fugas de los equipos químicos.
El sello mecánico se refiere a dos elementos de sellado anulares que, en las caras extremas planas de la superficie lisa, se colocan contra la presión media o la fuerza del resorte para girar entre sí para formar una estructura de sellado.Cuando el eje gira, el asiento del resorte, el resorte, la placa de presión del resorte, el anillo móvil y similares son impulsados para girar completamente.Debido a la fuerza del resorte, el anillo móvil se presiona firmemente contra el anillo estacionario.Cuando el eje gira, el anillo móvil y el eje giran completamente, y el anillo estático se fija en el marco para que quede estacionario, y la superficie del extremo de sellado anular del anillo móvil y el anillo estático evita la fuga del medio.Por lo tanto, desde el punto de vista estructural, el sello mecánico es importante para cambiar el sello axial que tiene fugas más fácilmente por el sello del extremo que no tiene fugas.
El sello se divide en: sello de empaque, sello mecánico y sello de helio.Al seleccionar el sello para el conjunto de agitación, la condición de sellado debe seleccionarse de acuerdo con la temperatura, la presión y la corrosividad y el pH del medio de agitación.
Hot Tags: agitador de entrada lateral para tanques de almacenamiento, China, fabricantes, proveedores, fábrica, compra, personalizado, cotización, hecho en China
Introducción del agitador de entrada lateral tipo P-Belt:
La instalación de un agitador de entrada lateral en el tanque de aceite se utiliza para mezclar aceites u otros medios y luego alcanzar el propósito de armonización, transferencia de calor, homogeneización y prevención de la acumulación de sedimentos.El uso de este equipo tiene muchas ventajas, como una pequeña inversión, operación conveniente, alta eficiencia, bajo consumo de energía, baja electricidad estática generada en el medio y garantía de calidad del producto.
El mezclador de entrada lateral tipo correa P se puede instalar en tanques de petróleo, tanques de lubricante, tambores de fueloil, tanques de parafina, tanques de asfalto (para asfalto de caucho pesado, betún de petróleo básico, asfalto de grado A) y algunos tanques de almacenamiento para aditivos y otros. medio que necesita ser agitado.
Material del agitador de entrada lateral para tanques de almacenamiento.
¿Cómo elegir el conjunto de sellado del agitador?
Es la clave para evitar fugas de medios tóxicos e inflamables al seleccionar el conjunto de sellado adecuado para que el agitador resuelva el funcionamiento, el funcionamiento, el goteo y las fugas de los equipos químicos.
El sello mecánico se refiere a dos elementos de sellado anulares que, en las caras extremas planas de la superficie lisa, se colocan contra la presión media o la fuerza del resorte para girar entre sí para formar una estructura de sellado.Cuando el eje gira, el asiento del resorte, el resorte, la placa de presión del resorte, el anillo móvil y similares son impulsados para girar completamente.Debido a la fuerza del resorte, el anillo móvil se presiona firmemente contra el anillo estacionario.Cuando el eje gira, el anillo móvil y el eje giran completamente, y el anillo estático se fija en el marco para que quede estacionario, y la superficie del extremo de sellado anular del anillo móvil y el anillo estático evita la fuga del medio.Por lo tanto, desde el punto de vista estructural, el sello mecánico es importante para cambiar el sello axial que tiene fugas más fácilmente por el sello del extremo que no tiene fugas.
El sello se divide en: sello de empaque, sello mecánico y sello de helio.Al seleccionar el sello para el conjunto de agitación, la condición de sellado debe seleccionarse de acuerdo con la temperatura, la presión y la corrosividad y el pH del medio de agitación.
Hot Tags: agitador de entrada lateral para tanques de almacenamiento, China, fabricantes, proveedores, fábrica, compra, personalizado, cotización, hecho en China